3 Bed 3 Bath Contemporary Townhome for Sale
- $489,990
3 Bed 3 Bath Contemporary Townhome for Sale
- $489,990
Overview
Property ID: 20915
- Townhome
- 1319 sqft
- 3
- 3
- Attached garage
- Property Owner
Description
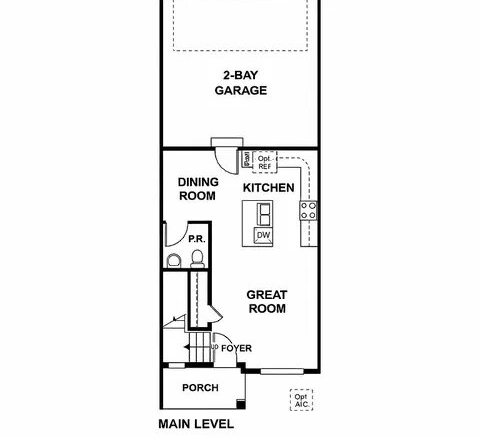
Welcome to this contemporary townhome that perfectly combines style and functional living. Situated in a prime location with rapid access to the I25 freeway, this property includes an attached 2 car garage and a layout designed for modern needs. The home is positioned only 10 minutes from major office hubs and falls within the zone for the top rated Rock Canyon High School. Residents will enjoy being only 5 minutes from the diverse dining and shopping options in Castle Rock, while daily necessities at local grocery stores are a mere 2 minutes away.
HOA – $120/Monthly
Open House
Friday, May 01
3:00 PM to 6:00 PM
Saturday, May 02
1:00 PM to 6:00 PM
Sunday, May 03
1:00 PM to 6:00 PM
Details
Updated on April 17, 2026 at 8:26 am-
Price $489,990
-
Property Size 1319 sqft
-
Bedrooms 3
-
Bathrooms 3
-
Year Built 2023
-
Property Status For Sale
-
Phone (972) 206-7336
-
Listed by Property Owner
-
Garage/Shop Attached garage
-
Air Conditioning Central air conditioning
-
Pool and Hot tub No swimming pool or hot tub
-
View Suburban
-
Furnished Unfurnished
-
Appliances Appliances included
-
Fenced yard Has a fenced yard
-
Homeowner's Association Yes
-
New Construction No
-
Foreclosure No
Features
Address
Open on Google Maps-
Address: 475 Millwall Cir, Castle Pines, CO 80108, USA
-
City: Castle Pines
-
State/county: Colorado
-
Zip/Postal Code: 80108
Contact Information
View Listings- Listing Manager















